Categorie Domiliare
€ 200.000
vendita
186 Mq
5 locali
2 bagno

Lecce: Appartamento - 5 locali - 186 mq

Via Gioacchino Toma, Lecce LE

Lista Annunci

A Lecce in vendita Appartamento di 5 locali

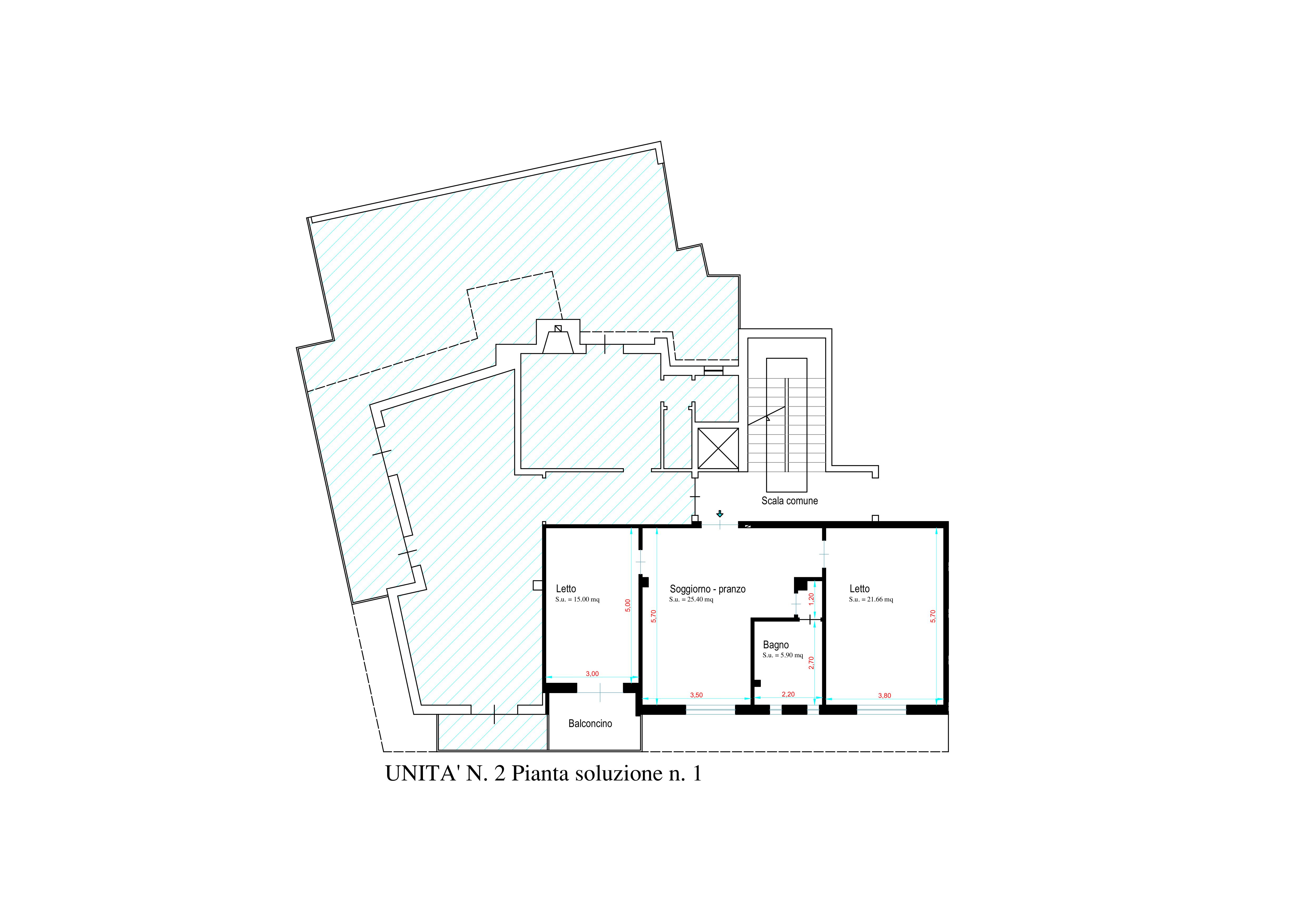
All’ultimo piano di un condominio in fase di completa ristrutturazione, in via Toma, quartiere San Pio, proponiamo un attico con ampio terrazzo a livello che rappresenta una vera occasione per investitori. L’appartamento, situato al quarto piano servito da ascensore, si distingue per la pianta regolare, la metratura generosa e il doppio ingresso dal pianerottolo, caratteristiche ideali per chi desidera valorizzarlo attraverso un frazionamento in due unità abitative luminose e ben ventilate, perfette per la locazione a studenti o professionisti.


La zona è una delle più ricercate di Lecce: a pochi passi dal Viale dell’Università e dal centro storico, con le sue stradine barocche, ristoranti, locali e servizi culturali, ma anche ben collegata alle principali arterie di accesso alla città. Nei dintorni si trovano supermercati, farmacie, uffici postali, fermate dei mezzi pubblici e numerosi servizi che rendono l’area vivace e sempre richiesta sul mercato delle locazioni.


Attualmente l’immobile si compone di un ingresso, una cucina abitabile dotata di camino con bagnetto e ripostiglio e accesso diretto al grande terrazzo, un salone doppio anch’esso con uscita sullo spazio esterno, tre camere da letto, un secondo bagno e un ulteriore ripostiglio. Completa la proprietà un comodo box auto, un plus raro in questa zona.


Grazie alla posizione strategica, alla possibilità di suddivisione e al contesto condominiale in rinnovamento, questo attico rappresenta un’opportunità di investimento ad alto rendimento, ideale per chi desidera intercettare la costante domanda di locazioni universitarie e turistiche della città di Lecce.

Caratteristiche

Riferimento e Data annuncio
DOMCASA 8006 - 24/09/2025
Contratto
vendita
Tipologia
Appartamenti - 5 locali
Superficie
186.00 m²
Locali
5 ( 4 camere da letto, 1 altro ), 2 bagni, 1 cucina
Piano
4 (attico)
Box
1
Balconi
1
Ascensore
SI
Classe Immobile
Media
Anno di costruzione
1968
Tipo di Proprietà
Intera proprietà

Efficienza energetica

Classe energetica:
Prestazione energetica:

Descrizione dei locali

  • Altri Locali:
    Ripostiglio
    Corridoio
    Disimpegno
  • Bagno:
    Con finestra
    Con finestra
  • Cucina:
    Abitabile
  • Locali:
    Ingresso
    Camera Da Letto
    Camera Da Letto
    Camera Da Letto
    Camera Da Letto
    Sala Da Pranzo
    Ripostiglio
    Ripostiglio
  • Rimesse:
    Box

Altre caratteristiche

  • Pertinenze Esterne:
    Balcone
    Terrazzo
  • Servizi:
    Canna Fumaria
    Citofono
    Ascensore
  • Stato Immobile:
    Usato
    Usato ( da ristrutturare )
  • Vista:
    Panoramica

Nelle vicinanze

  • Bar ( 500 metri )
  • Ristorante ( 500 metri )
  • Farmacia ( 500 metri )
  • Ospedale ( meno di 2 km )
  • Scuola ( meno di 1 km )

Video

Per visualizzare questo video è necessario accettare i cookie.
close
Contatta Domiliare