Categorie Domiliare
€ 480/mese
locazione
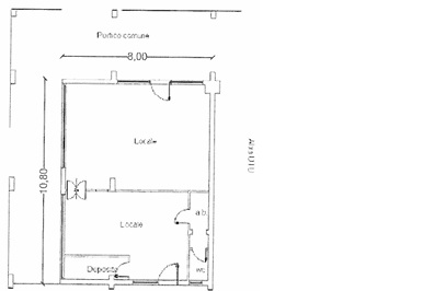
85 Mq
1 locali
1 bagno

Lecce: locale commerciale - 1 locale - 85 mq

VIA ANTONIO PIGAFETTA, Lecce LE

Lista Annunci
NUOVO
22046-ingresso-3

A Lecce in locazione locale commerciale di 1 locale

Nel cuore pulsante di San Cataldo, rinomata marina del Leccese, proponiamo in locazione locale commerciale di circa 85 mq, situato nella piazzetta principale, in un contesto vivace e perfettamente integrato con le attività già presenti nella zona.

La posizione è strategica: un punto di passaggio naturale per residenti e turisti, ideale per chi desidera avviare o consolidare un’attività in vista della bella stagione, diventando un vero punto di riferimento della marina.

Il locale gode di ampia vetrina fronte piazza, elemento fondamentale per garantire visibilità e attrattività, ed è dotato di doppio ingresso, caratteristica particolarmente apprezzata per attività ristorative, commerciali o che necessitano di una gestione funzionale di clienti e fornitori.

Attualmente l’immobile si presenta suddiviso in più ambienti tramite muri in cartongesso, facilmente rimodulabili o removibili, consentendo di ripristinare con semplicità un grande open space capace di adattarsi a molteplici progetti imprenditoriali.

Un ulteriore valore aggiunto è rappresentato dallo spazio esterno antistante, che permette la realizzazione di un ampio dehors capace di circondare l’intero locale, sfruttando appieno il contesto della piazzetta e aumentando la superficie fruibile, soprattutto nei mesi primaverili ed estivi.

La soluzione si presta perfettamente a bar, bistrot, ristorazione, concept store, showroom, attività legate al turismo o al tempo libero, offrendo flessibilità, visibilità e una posizione di forte richiamo.

 Disponibile per progetti dinamici e orientati alla stagionalità, con grande potenziale di crescita.

Caratteristiche

Riferimento e Data annuncio
DOMIMP 22046 - 12/01/2026
Contratto
locazione
Tipologia
Locale commerciale - locale commerciale
Superficie
85.00 m²
Locali
1 ( 1 altro ), 1 bagni,
Piano
0 (terra)
Ascensore
NO
Classe Immobile
Media
Anno di costruzione
1990
Tipo di Proprietà
Intera proprietà

Efficienza energetica

Classe energetica:
Prestazione energetica:

Climatizzazione estiva
Climatizzazione invernale

Descrizione dei locali

  • Bagno:
    Antibagno

Altre caratteristiche

  • Strutture Accessorie:
    Accesso Persone Disabili

Nelle vicinanze

  • Bar
  • Supermercato
  • Farmacia
  • Giardini Pubblici
close
Contatta Domiliare