Categorie Domiliare
€ 3.200/mese
locazione
350 Mq
8 locali
3 bagno

Ufficio di ampia metratura in affitto, Via Papadia (Le)

Via Baldassarre Papadia, Lecce LE

Lista Annunci
NUOVO
2469-sala riunioni-1

Ufficio di ampia metratura in affitto, Via Papadia (Le)

In Via Papadia, a pochi passi da Viale della Libertà, proponiamo in locazione un ufficio di importante metratura, ideale per aziende strutturate, studi professionali, società di servizi o realtà in crescita che necessitano di spazi funzionali, luminosi e facilmente raggiungibili.

Il contesto è uno dei punti di forza: la via offre ampia disponibilità di parcheggi pubblici gratuiti, facilitando la sosta sia per il personale sia per i clienti. Un vantaggio competitivo reale rispetto ad altre zone della città.

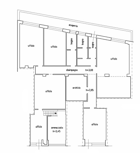
L’immobile si sviluppa al piano terra e dispone di due ingressi indipendenti, caratteristica strategica se si desidera suddividere i flussi in entrata, creare un’area riservata per i collaboratori, una sala d’attesa separata oppure gestire due reparti distinti della stessa attività.

All’interno si sviluppano 8 sale operative, tutte ben distribuite e naturalmente illuminate grazie alla doppia esposizione, condizione rara e preziosa per ottenere ambienti di lavoro confortevoli, accoglienti ed energicamente efficienti.

I tre servizi – di cui alcuni già attrezzati per persone con disabilità – garantiscono praticità e privacy per staff e clientela.

La sala principale, più ampia delle altre, si presta perfettamente come sala riunioni, sala meeting o spazio formativo, ideale per incontri con clienti, briefing con il team o eventi interni.

Questa soluzione offre tutto ciò che serve per far crescere la tua azienda:

– posizione strategica;

– facilità di parcheggio;

– spazi modulabili;

– luminosità;

– accessibilità;

– immagine professionale.

Un ufficio pronto ad accogliere attività che cercano qualità, funzionalità e la giusta cornice per consolidare e sviluppare il proprio business.


Contattaci per fissare una visita e assicurarti questa opportunità.

Caratteristiche

Riferimento e Data annuncio
DOMIMP 2469 - 02/12/2025
Contratto
locazione
Tipologia
Ufficio - ufficio
Superficie
350.00 m²
Locali
8 ( 8 altro ), 3 bagni,
Piano
0 (terra)
Condizionamento
Autonomo
Ascensore
NO
Classe Immobile
Media
Anno di costruzione
1980
Tipo di Proprietà
Intera proprietà

Efficienza energetica

Classe energetica:
Prestazione energetica:

Climatizzazione estiva
Climatizzazione invernale

Descrizione dei locali

  • Bagno:
    Antibagno
    Antibagno
    Antibagno
  • Condizionamento:
    Autonomo
  • Riscaldamento:
    Autonomo

Altre caratteristiche

Nelle vicinanze

  • Mezzi Pubblici
  • Bar
  • Supermercato
  • Farmacia
  • Scuola
  • Parcheggio Pubblico
  • Vie di Passaggio
  • Strade Grossa Percorrenza
  • Centro Commerciale
close
Contatta Domiliare