Categorie Domiliare
€ 230.000
vendita
210 Mq
6 locali
3 bagno

Lecce: villa a schiera - 6 locali - 210 mq

Via Salvo D'Acquisto, Lecce LE

Lista Annunci
NUOVO

A Lecce in vendita villa a schiera di 6 locali

In una delle zone residenziali più apprezzate di Lecce, a pochi minuti dal centro ma immersa in un contesto tranquillo e ben servito, proponiamo in vendita una villetta a schiera situata in via Salvo D’Acquisto. La posizione è particolarmente interessante per chi desidera vivere lontano dal traffico cittadino senza rinunciare alla comodità di avere scuole, attività commerciali e principali vie di collegamento facilmente raggiungibili. Il quartiere è caratterizzato da abitazioni indipendenti e spazi verdi, ideale per famiglie che cercano serenità e qualità della vita.


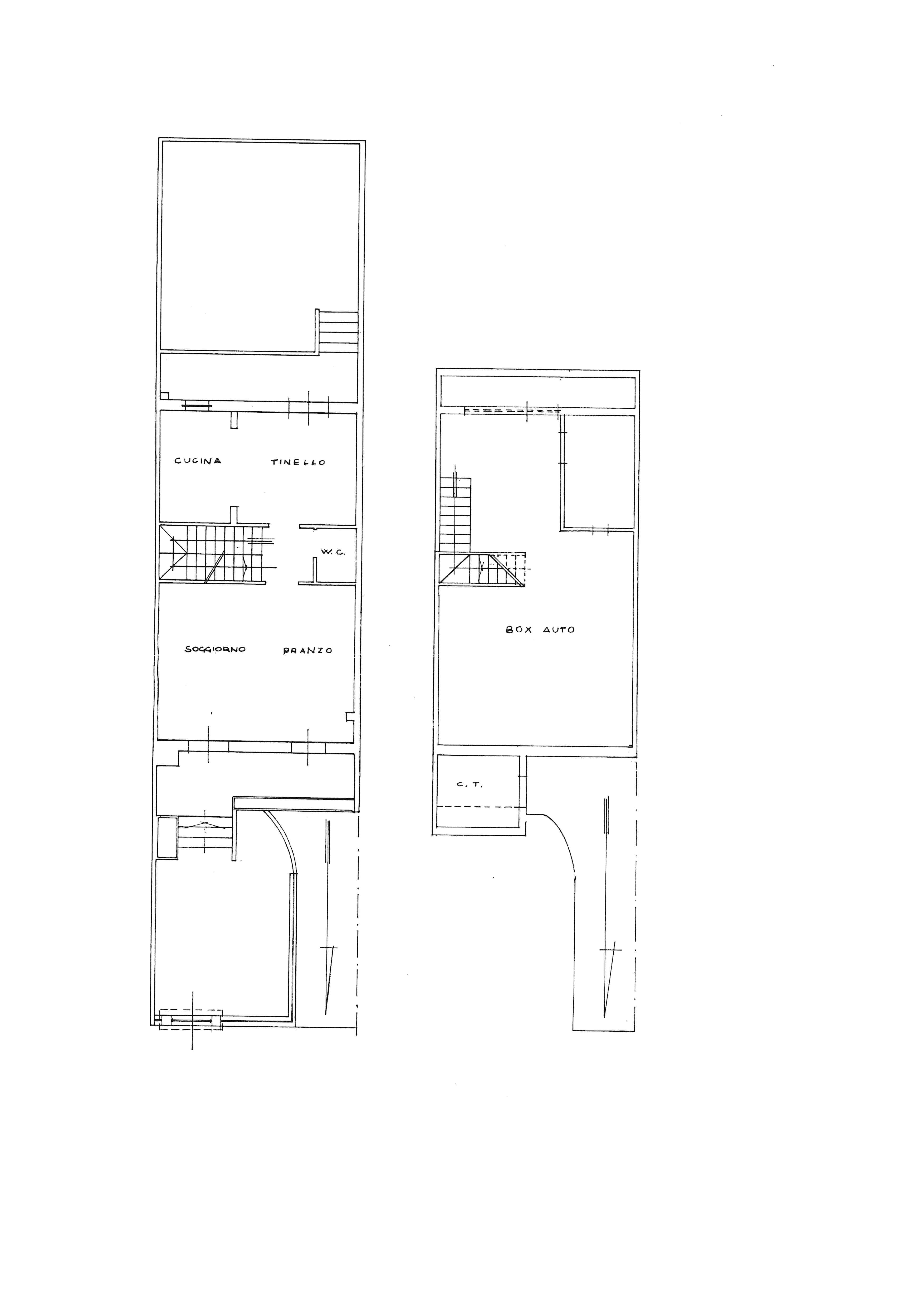
L’immobile si sviluppa su tre livelli e accoglie sin dall’ingresso con un piacevole giardino antistante che conduce a un ampio ingresso/salone, ambiente generoso e luminoso che rappresenta il cuore della casa e lo spazio perfetto per accogliere famiglia e ospiti. Il piano terra prosegue con un soggiorno dotato di camino, che dona calore e atmosfera agli ambienti, un angolo cottura funzionale con accesso diretto al giardino retrostante, ideale per momenti di relax all’aperto, e un comodo bagno di servizio.


Salendo al primo piano si sviluppa la zona notte, composta da tre camere da letto, tutte ben illuminate e servite da balconi sia sul fronte che sul retro, oltre a due bagni che garantiscono comfort e praticità per tutta la famiglia.


Il piano interrato ospita una cantina collegata internamente al box auto doppio, soluzione particolarmente comoda sia per il parcheggio che per avere uno spazio aggiuntivo da destinare a deposito, taverna o area hobby. A completare la proprietà vi è l’area solare di esclusiva pertinenza, un valore aggiunto sempre più ricercato.


L’immobile si presenta abitabile ma conserva le finiture originali degli anni ’80, offrendo così la possibilità di essere rinnovato e personalizzato secondo il proprio gusto e le esigenze contemporanee.


Una proposta ideale per famiglie che cercano indipendenza, spazi ampi e una casa da modellare nel tempo, in una delle zone più tranquille e ben collegate di Lecce.

Caratteristiche

Riferimento e Data annuncio
DOMCASA 13845 - 31/03/2026
Contratto
vendita
Tipologia
Ville - villa a schiera
Superficie
210.00 m²
Locali
6 ( 3 camere da letto, 3 altro ), 3 bagni, 1 cucina
Piano
0 (su più livelli)
Box
1
Balconi
2
Ascensore
NO
Classe Immobile
Media
Anno di costruzione
1985
Tipo di Proprietà
Intera proprietà
Anno di ristrutturazione
2000
Anno di ristrutturazione interna
1985

Efficienza energetica

Classe energetica:
G
Prestazione energetica:
200 Kwh/m2/anno

Descrizione dei locali

  • Altri Locali:
    Ripostiglio - 5 mq ( luminoso , al piano secondo )
    Ripostiglio - 8 mq ( cieco , al piano interrato nel box auto )
    Scala Interna ( cieco , centrale che collega tutti i piani della villetta, dall'interrato fino all'area solare di proprietà- )
    Disimpegno - 2,5 mq ( cieco , disimpegno tra soggiorno e sala da pranzo con accesso al vano scala interno per la zona notte al primo piano )
    Disimpegno - 3,5 mq ( cieco , al primo piano tra il vano scala, le camere da letto e i bagni )
    Cabina Armadio - 2 mq ( al primo piano, nel disimpegno )
  • Bagno:
    Con finestra - 7 mq ( vasca , bagno patronale al primo piano )
    Cieco - 2,5 mq ( bagno di servizio al piano terra )
    Cieco - 2,5 mq ( secondo bagno di servizio al primo piano )
  • Cucina:
    Non abitabile - 8 mq ( cucina aperta , direttamente collegata con arco alla sala da pranzo )
  • Locali:
    Camera Da Letto - 13,5 mq ( luminosa doppia , prima camera da letto con accesso a balcone retrostante )
    Camera Da Letto - 9 mq ( luminosa singola , seconda letto con accesso a balcone retrostante )
    Camera Da Letto - 18 mq ( luminosa matrimoniale , terza camera da letto, con accesso a balcone fronte strada )
    Sala Da Pranzo - 14,5 mq ( luminosa , con caminetto e accesso al giardino retrostante )
    Soggiorno - 30 mq ( luminoso doppio , ingresso soggiorno ampio e luminoso al piano terra )
  • Rimesse:
    Box - 55 mq ( triplo privato coperto , al piano interrato, direttamente collegato con vano scala interno all'abitazione e con annesso ripostiglio )
  • Riscaldamento:
    Autonomo ( metano )

Altre caratteristiche

  • Pertinenze Esterne:
    Balcone - 9 mq( privato aperto , primo balcone, fronte strada con accesso dalla camera matrimoniale )
    Balcone - 9 mq( privato aperto , secondo balcone retrostante, con accesso dalle due camere da letto )
    Portico - 11 mq( verandato privato , veranda d'ingresso )
    Portico - 10 mq( verandato privato , veranda retrostante con accesso da cucina e sala da pranzo, direttamente collegata al giardino. )
    Terrazzo - 70 mq( privato aperto , area solare di proprietà collegata con scala interna, posta al secondo piano )
  • Servizi:
    Giardino - 30 mq( privato , Giardinetto di ingresso antistante )
    Giardino - 45 mq( privato , Giardino retrostante )
    Canna Fumaria ( privato , per il caminetto nella sala da pranzo )
  • Stato Immobile:
    Usato ( stato originale )
  • Strutture Accessorie:
    Passo Carraio ( per l'accesso al box al piano interrato )

Nelle vicinanze

  • Mezzi Pubblici ( 500 metri )
  • Bar ( 500 metri )
  • Ristorante ( meno di 1 km )
  • Supermercato ( 500 metri )
  • Farmacia ( 500 metri )
  • Ospedale ( meno di 1 km )
  • Giardini Pubblici ( 500 metri )
  • Tangenziali ( meno di 1 km )
  • Vie di Passaggio ( 500 metri )
  • Strade Grossa Percorrenza ( 500 metri )

Video

Per visualizzare questo video è necessario accettare i cookie.
close
Contatta Domiliare